Vous trouverez ci-dessous mes prestations pour vous accompagner dans la réussite de vos projets de rénovation, de valorisation immobilière ou même d’optimisation d’espaces professionnels.
Toutes les prestations sont disponibles sur place ou à distance. N’hésitez pas à me contacter pour discuter de votre projet.
~ ARCHI RAPIDE ~
Mon projet 100% en ligne rapide, facile et accessible.
Avec mon offre Archi Rapide, vous obtiendrez votre intérieur remodelé et décoré par mes soins. Bien plus qu’une décoration, je repense l’espace, les circulations et la fonctionnalité de chaque pièce.
Ce que vous obtenez :
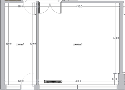
- Un plan d’aménagement
- Des visuels 3D de votre intérieur
- Une planche d’ambiance
- Des conseils personnalisés à vos envies et adaptés à vos besoins
~ DOSSIER D’AMENAGEMENT ET DECORATION (Avant-Projet Sommaire) ~
Après un rendez-vous ensemble sur place ou en visio, vous obtenez votre dossier d’avant projet sommaire contenant :
- le plan actuel,
- le cahier des charges défini,
- la ou les planches d’inspiration,
- 2 propositions d’aménagement sous forme de plan 2D,
- des esquisses 3D du projet.
~ DOSSIER D’EXECUTION DE PROJET (Avant-Projet Définitif) ~
Une fois le dossier sommaire réalisé, nous validons ensemble l’aménagement de votre choix et je vous fournis un dossier complet contenant l’ensemble des éléments dont vous aurez besoin pour vos travaux :
- le plan actuel,
- le cahier des charges défini,
- la ou les planches d’inspiration,
- le plan d’aménagement validé,
- des vues 3D qui permettent de se projeter,
- le plan de démolition selon le projet,
- le plan d’éclairage,
- le plan d’électricité,
- la recherche de matériaux et peintures,
- la ou les planches shopping mobilier et accessoires.
Carte Cadeau
Faites plaisir à vos proches en leur offrant une prestation d’architecture d’intérieur. C’est le cadeau parfait pour l’arrivée de bébé, une pendaison de crémaillère ou un anniversaire.


Avant

Après

Vues 3D